Appartement
2.5 Pièces
6653 Verscio
Immédiatement
Au cœur du charmant village de Verscio, nous vous proposons à la vente l’appartement A1.2, un logement de 2,5 pièces situé au rez-de-chaussée de la nouvelle Residenza Duetto, dans une position privilégiée au milieu de la nature. Le projet, caractérisé par une architecture moderne et des lignes épurées, s’élèvera dans un quartier résidentiel calme et ensoleillé, à quelques minutes à pied du centre du village et de la gare. L’appartement A1.2, d’une surface brute de 75 m² et d’un jardin de 91 m², se distingue par ses intérieurs lumineux et spacieux: un grand salon avec cuisine ouverte, une loggia pratique, une chambre, une salle de bains et un hall d’entrée avec un espace de rangement pratique. Les fenêtres de grande hauteur, stratégiquement placées, garantissent une luminosité naturelle exceptionnelle tout au long de la journée et créent un lien visuel et sensoriel avec l’extérieur. La végétation environnante et le paysage verdoyant et serein...
Appartement
4.5 Pièces
4.5 Pièces
CHF 1'240'000.-
Via Rinaldo Simen, 6648 Minusio
1er étage
Immédiatement
MINUSIO – Appartement neuf de 4,5 pièces avec terrasse généreuse
Près du lac, sur les rives de la commune de Minusio, nous vous proposons à la vente cet appartement de 4,5 pièces avec une grande terrasse orientée plein sud. La résidence Onda est construite sur six niveaux et se distingue par ses normes énergétiques élevées, son style, le choix soigneux des matériaux et l’utilisation du verre comme élément transparent reliant l’intérieur et l’extérieur. Le thème de la vague et de l’eau en tant qu’élément de mouvement est repris dans la forme et le caractère du bâtiment. Sa situation stratégique, à proximité des supermarchés, des écoles, des activités de loisirs et des installations publiques, est idéale pour les couples ou les familles qui souhaitent vivre dans un environnement moderne avec tout le nécessaire à portée de main. Cet appartement lumineux et accueillant est situé au 1er étage et dispose de 3 chambres à coucher, dont une chambre principale avec salle de bains privative et accès à la terrasse. La...
Terrain à bâtir
CHF 1'270'000.-
Via Al Parco 13, 6644 Orselina
Immédiatement
ORSELINA – Terrain constructible intéressant avec maison
Située dans un endroit paisible et partiellement panoramique dans la belle localité collinaire d’Orselina, cette propriété représente une opportunité rare pour qui souhaite investir dans l’une des zones les plus demandées du Tessin. L’élément de valeur le plus important est le terrain à bâtir adjacent, vendu avec la maison typique tessinoise existante. La propriété comprend un terrain à bâtir de 618 m², situé dans une zone résidentielle semi-intensive, qui offre un excellent potentiel de construction grâce aux indices IS 0.7 et IO 70%, avec une hauteur maximale de faîtage de 9.50 m et des toits plats jusqu’à 10 m. Cet espace, entouré de verdure et orienté vers le lac avec une belle vue, est idéal pour développer un projet moderne et sur mesure, en complément de la résidence existante ou en réalisant un nouveau projet. En contrebas du terrain se trouve la maison tessinoise construite dans les années 1950, caractérisée par un charme authentique et...
Appartement
5.5 Pièces
5.5 Pièces
CHF 2'150'000.-
Via Verbano, 6648 Minusio
4ème étage
Immédiatement
MINUSIO – Élégant penthouse avec vue partielle sur le lac
Nous proposons à la vente un élégant penthouse situé au dernier étage d’une résidence raffinée à Minusio, dans un quartier résidentiel très prisé pour son calme et sa proximité avec le lac Majeur et toutes les commodités principales. La propriété se distingue par son architecture moderne, ses espaces généreux et la lumière naturelle qui inonde chaque pièce grâce à de grandes surfaces vitrées et une excellente exposition au soleil. Le penthouse a été conçu pour offrir une expérience de vie haut de gamme, idéale pour ceux qui recherchent un cadre exclusif, entouré de la tranquillité et de la beauté naturelle du paysage tessinois. L’accès direct par ascenseur garantit une intimité et un confort absolus dès l’entrée, menant directement à un spacieux espace de vie, comprenant un confortable salon et un espace à manger séparé, tous deux ouvrant sur une terrasse avec vue partielle sur le lac et un large panorama sur les montagnes environnantes. La...
Restaurant
4.5 Pièces
4.5 Pièces
CHF 845'000.-
6672 Gordevio
Immédiatement
GORDEVIO – Belle Grotto tessinoise
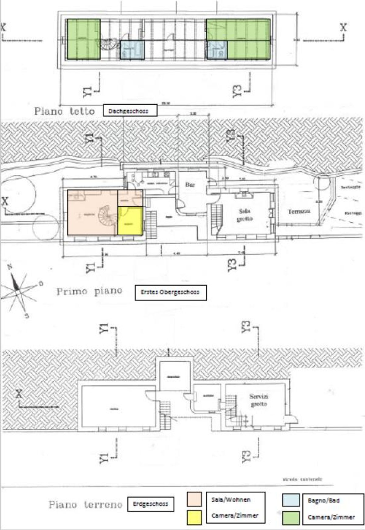
La propriété, construite à l’origine entre 1850 et 1900, a été entièrement rénovée en 1992 et a conservé son charme. Les sols en pierre, la cheminée, les poutres en bois apparentes et le toit en piode font de cette magnifique propriété un endroit unique. La grotte est située dans une position ensoleillée et stratégique, sur la route cantonale entre Gordevio et Maggia (zone de Ronchini), à seulement 9 km de Locarno. Le point fort est l’appartement du gérant sous le même toit, la combinaison grotte-maison est très intéressante sur le plan économique. Le restaurant a une excellente réputation dans la région et est connu et apprécié des touristes et des habitants. Description: Grotte / Restaurant * Salle de 30 places avec cheminée pittoresque * Coin bar * Cuisine équipée d’appareils industriels * Rez-de-chaussée avec services confortables, cave et salle de jeux * Terrasse-pergola avec 45 places, barbecue et tables typiques en granit tessinois * Parking...
Appartement
3.5 Pièces
3.5 Pièces
CHF 1'290'000.-
6648 Minusio
Immédiatement
MINUSIO – Appartement moderne de 3,5 pièces avec un grand jardin
Au cœur de Minusio, cet appartement moderne au rez-de-chaussée offre le mélange parfait de confort, de fonctionnalité et d’intimité. Construit en 2022, ce bijou architectural se distingue par ses détails de design contemporain et son jardin privé exclusif. Sa situation stratégique, à proximité des supermarchés, des écoles, des activités de loisirs et des installations publiques, en fait l’endroit idéal pour les couples ou les familles qui souhaitent vivre dans un environnement moderne avec tout le nécessaire à portée de main. L’appartement accueille ses hôtes dans un salon spacieux et lumineux, parfait pour se détendre et recevoir. De grandes fenêtres laissent entrer la lumière naturelle, créant une atmosphère chaleureuse et accueillante. Le salon se connecte sans heurt à la cuisine moderne entièrement équipée, dotée d’appareils électroménagers de pointe et de comptoirs de haute qualité. Un véritable atout de cette propriété est le jardin...
Appartement
3.5 Pièces
3.5 Pièces
CHF 995'000.-
Strada Collinetta, 6612 Ascona
1er étage
Immédiatement
ASCONA – Appartement lumineux entouré de verdure
Appartement lumineux avec possibilité de résidence secondaire, situé au premier étage d’un condominium élégant entouré de verdure à Ascona. Cette propriété de 3,5 pièces offre un environnement idéal pour ceux qui recherchent la tranquillité, le confort et la beauté de la nature environnante. En entrant, vous êtes accueillis par un spacieux salon avec cheminée qui crée une atmosphère chaleureuse et accueillante, parfaite pour les soirées en famille ou entre amis. La cuisine ouverte récemment rénovée est équipée d’appareils électroménagers de haute qualité de la marque V-Zug, alliant fonctionnalité et design moderne, idéale pour les amateurs de cuisine. L’appartement comprend deux chambres spacieuses et bien agencées avec placards intégrés, chacune offrant le niveau de vie privée et de confort souhaité. La chambre principale est un véritable refuge, dotée d’une salle de bains privative aux finitions modernes et fonctionnelles. Une deuxième...
Appartement
3.5 Pièces
3.5 Pièces
CHF 1'100'000.-
6565 S. Bernardino
7ème étage
Immédiatement
SAN BERNARDINO – ALBARELLA – Appartements modernes de 3,5 pièces
Au cœur du village alpin de San Bernardino, la Résidence Albarella incarne une nouvelle vision de la vie en montagne: élégance, tranquillité et services exclusifs se conjuguent dans une structure emblématique entièrement rénovée. La symbolique Tour Albarella brille à nouveau de mille feux en tant que complexe résidentiel moderne, offrant le meilleur en matière de confort et de style alpin contemporain. Les propriétaires ont accès à un espace bien-être raffiné avec piscine, deux restaurants, un bar-salon et des espaces événementiels, le tout dans un emplacement stratégique à quelques pas des remontées mécaniques et des principaux équipements du village. Certains appartements, dont le 7.02, sont exclusivement destinés à une résidence secondaire, offrant la possibilité de profiter de moments de détente et de plaisir dans un cadre authentique et enchanteur, tout en respectant la tranquillité du lieu. L’appartement 7.02, situé au septième étage, offre une...
Appartement
4.5 Pièces
4.5 Pièces
170 m²
170 m²
Prix sur demande
6648 Minusio
Immédiatement
MINUSIO – Luxuriöse Wohnung in privilegierter Lage
À Minusio, à quelques pas des rives du lac Majeur, nous proposons à la vente un élégant et raffiné appartement duplex situé dans un immeuble moderne et prestigieux ne comprenant que deux unités résidentielles. L’appartement s’étend sur deux étages et offre un agencement fonctionnel et idéal pour vivre en toute détente dans l’un des quartiers les plus prisés de Minusio. Cet appartement se distingue par son design raffiné et son élégance intemporelle, avec un accent particulier sur la fonctionnalité et le confort. Au rez-de-chaussée, on trouve le cœur de l’appartement, la spacieuse zone de vie, composée d’un grand salon et d’une moderne cuisine ouverte entièrement équipée d’appareils électroménagers de haute qualité. Les lignes modernes et pratiques de la cuisine la rendent parfaite pour tous ceux qui aiment cuisiner et passer des moments conviviaux dans un environnement cosy. La zone de vie est complétée par une pratique garde-manger et un...
Appartement
1.5 Pièces
1.5 Pièces
CHF 345'000.-
Via Ferrera 58, 6612 Ascona
1er étage
Immédiatement
ASCONA – Bel appartement d’une chambre en centre-ville
Nous proposons à la vente ce charmant appartement d’une chambre au premier étage d’un immeuble résidentiel bien entretenu à Ascona. L’appartement se compose d’un salon-chambre lumineux, d’une cuisine séparée et d’une salle de bains complète avec baignoire. Le bien offre la possibilité d’être rénové selon vos goûts et vos besoins. Puisqu’il peut également être utilisé comme résidence secondaire, il est la solution idéale pour un pied-à-terre pour ceux qui souhaitent passer de beaux moments sur les rives du lac Majeur. La situation est particulièrement intéressante: calme et isolée, mais en même temps proche de tous les services, des transports publics, des magasins, des écoles et de la célèbre place d’Ascona, à quelques minutes à pied. La propriété est complétée par un sous-sol privé et l’accès aux espaces communs de la résidence. Le bien a été évalué par la banque d’État, qui confirme la possibilité de financement au prix...
Villa
4.5 Pièces
4.5 Pièces
CHF 2'990'000.-
Via Al Chiosso, 6645 Brione sopra Minusio
Immédiatement
BRIONE S/MINUSIO – Nouvelle villa Nucleo
Nous proposons à la vente une villa individuelle exceptionnelle située dans le cœur pittoresque de Brione s/Minusio et actuellement en construction. Cette résidence exclusive a été conçue avec le plus grand soin pour chaque détail et utilise des matériaux de la plus haute qualité, notamment des pierres et des bois nobles, ainsi que des solutions technologiques de pointe. Le résultat est une villa de luxe qui constitue le choix idéal pour ceux qui recherchent le confort, l’élégance et un design moderne. La propriété bénéficie d’un emplacement privilégié avec une vue imprenable sur le lac Majeur et les montagnes environnantes, créant une atmosphère paisible et relaxante parfaite pour profiter de la vie quotidienne. La villa s’étend sur trois étages, comprenant deux étages au-dessus du sol et un grenier, tous reliés par une élégante cage d’escalier en bois. Le niveau d’entrée accueille un spacieux salon lumineux, avec des pièces bien agencées qui...








































































































































